Project
Date
Location
Type
Size
Status
Chartwell Road House
2015
Oakville, Canada
Residential
983 m2
Designed
Granite Place Penthouse
2025
Toronto, Canada
Residential
350 m2
Completed
Dorado Beach East Renovation
2020
Dorado Beach, Puerto Rico
Residential
528 m2
Designed
[ West] 07 Courtyard [version 1]
Dorado Beach Landscape
2020
Dorado Beach, Puerto Rico
Landscape
398 m2
Designed
Avonhurst Road House
2022
Etobicoke, Canada
Residential
443 m2
Completed
Carrying Place Trail House
2025
Kettleby, Canada
Residential
1,295 m2
Completed
Corredor Miralago
2025
Dorado, Puerto Rico
Residential
465 m2
Completed
Imperial Street House
2021
Toronto, Canada
Residential
550 m2
Designed
Dorado Beach East House
2023
Dorado Beach, Puerto Rico
Residential
860 m2
Designed
Finchley Road House
2022
Etobicoke, Canada
Residential
572 m2
Designed
Wells Hill Avenue Sunroom
2024
Toronto, Canada
Residential
525 m2
Designed
Rincón House
2021
Rincón, Puerto Rico
Residential
653 m2
Designed
Bangkok Lofts
2004
Bangkok, Thailand
Multi-Unit
4,985 m2
Concept
Madison Avenue House
2021
Toronto, Canada
Residential
651 m2
Designed
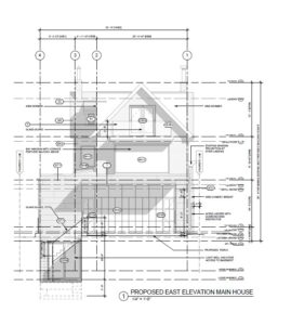
MAD-001_West Elevation
MAD-001_East Elevation
Centre Street House (Small)
2025
Thornhill, Canada
Residential
434 m2
Designed
EXT_FRONT_ELEV_01_Coloured – Resized
INT_LIVING_Coloured – Resized
INT_KITCHEN_ANGLE_02_Coloured – Resized
EXT_REAR_ELEV_01_Coloured – Resized
Gibbous Moon Table
2018
Toronto, Canada
Furniture
1 m2
Completed
MJH-008_Gibbous Moon Table
190129_MJH-008_Assembly Reference_Black_No Moon
MJH-008_IMG_L1_LivingRoom04_by Steve Tsai_CROP2
Montecristi Development Masterplan
2016
Montecristi, Ecuador
Multi-Unit
13,200 m2
Concept
ECD-001_RND_S1_View from beach path
ECD-001_RND_S1_View from courtyard
Donwoods House
2026
Toronto, Canada
Residential
899 m2
In Progress
Old Park Road House
2022
Toronto, Canada
Residential
546 m2
Designed
Talisman
2018
Kimberley, Ontario
Multi-Unit
3,187 m2
Concept
View from Far
180413_Final Perspective
Elm Street Apartment
2020
Toronto, Canada
Residential
77 m2
Designed
Peebles Avenue House
2020
Toronto, Canada
Residential
558 m2
Completed
Six Point
2020
Etobicoke, Canada
Commercial
600 m2
Completed
Stack House
2009
Toronto, Canada
Residential
222 m2
Completed
DEL-001
654 Richmond Street W
Head West
2015
Calgary, Canada
Artwork
44 m2
Concept
151002_Site Location Plan_SO
Print
151003_Colour Configurations-01
151003_Perspective B
151003_Perspective A
Ellis Avenue Studio
2011
Toronto, Canada
Residential
69 m2
Completed
MAR-001_IMG_S1_With Jaguar 2_by Mike Lam
MAR-001_IMG_S1_Ceiling Detail_by Mike Lam
MAR-001_IMG_S1_Ceiling_by Mike Lam
Big Island Road Complex
2026
Prince Edward County, Canada
Residential
1,764 m2
In Progress
Broward County Convention Centre
2020
Fort Lauderdale, USA
Artwork
725 m2
Concept
Northern Overture
2017
Edmonton, Canada
Artwork
7,539 m2
Concept
EDM-001_RND_L1__North east blended view_day & night
EDM-001_RND_L1_North east blended view
EDM-001_RND_L1_North east day view
Montreal Holocaust Museum
2022
Montreal, Canada
Cultural
6,665 m2
Designed
Collaborators: Lahdelma & Mahlamäki
MHM-001_Montreal Holocaust Museum
MHM-001_RND_Street View
MHM-001_RND_Chasm
Rex Hotel Renovation
2006
Toronto, Canada
Multi-Unit / Commercial
1,345 m2
Completed
BWS-3
Chestnut Park Addition
2023
Toronto, Canada
Residential
497 m2
Designed
Enscape_2023-10-24-16-53-53
Enscape_2023-10-24-17-00-49
Enscape_2023-12-04-15-10-18
Bayview Sculpture Garden
2023
Toronto, Canada
Landscape
2,650 m2
Concept
Syncopations
2014
Toronto, Canada
Artwork
800 m2
Concept
Don Valley Art Fence
LDV-001_RND_S1_South cadence
LDV-001_RND_S1_North cadence
LDV-001_RND_S1_South cadence elevation_01
LDV-001_RND_S1_South cadence elevation_02
28 November, 1942 Memorial
2020
Boston, United States
Artwork
3 m2
Concept
Artboard 1 copy
Wendy’s Garden
2021
Toronto, Canada
Landscape
155 m2
Completed
Perspective_Bird’s Eye
Perspective_Shade Structure
Perspective_Deck
Perspective_Main
Centre Street House
2026
Thornhill, Canada
Residential
809 m2
In Progress
KCR-001_Centre Street House
260127-INT_LIVING ROOM_COLOURED – Resized
260127-INT_KITCHEN_COLOURED – Resized
260127-EXT_REAR_COLOURED – Resized
Somerset House
2022
Toronto, Canada
Residential
228 m2
Completed
Waking Hours
2013
Toronto, Canada
Artwork
9 m2
Concept
Glen Road House
2024
Toronto, Canada
Residential
590 m2
Completed
Canadian Automotive Museum
2024
Oshawa, Ontario
Cultural
48,000 m2
In Progress
The Open Hand
2023
Toronto, Canada
Artwork
2,630 m2
Concept
229 Richmond Street West Park Competition Entry
RWP-001_The Open Hand
RWP-001_RND_L1_Streetview_01
RWP-001_RND_L1_Aerial Perspective_01
RWP-001_RND_L1_Seating Area
RWP-001_RND_L1_entry
Jane & Finch Youth Centre
2013
North York, Canada
Cultural
265 m2
Completed
Villa Ensenada
2022
Rincón, Puerto Rico
Multi-Unit
229 m2
Designed
Queen Street Commercial Unification
2024
Toronto, Canada
Commercial
1,955 m2
Completed
Research in Motion (RIM) Offices
2009
Waterloo, Canada
Commercial
2,150 m2
Designed
Foxbar House
2024
Toronto, Canada
Residential
501 m2
Designed
FLK-001_Front Facade
Mexico City Apartment
2025
Mexico City, Mexico
Residential
181 m2
Completed
B2 – Main (Kitchen)
B3 – Living Room
Rear_Alt_No Range Hood
Student Residence & Coach House
2026
Toronto, Canada
Multi-Unit
651 m2
In Progress
Kuro House
2024
Etobicoke, Canada
Residential
288 m2
Completed
Yonge Street Mid-rise
2020
Toronto, Canada
Multi-Unit
3,479 m2
Designed
Rose Park Addition
2021
Toronto, Canada
Residential
396 m2
Completed
Kids & Co. Daycare
2013
Toronto, Canada
Commercial
450 m2
Completed
703 Bloor Street West
2013
Toronto, Canada
Commercial
1,060 m2
Completed
African Refugee Centre
2023
Toronto, Canada
Cultural
6,120 m2
Concept
AFR-001_Perspective_final
Daisy Island
2026
Georgian Bay, Canada
Residential
160 m2
In Progress
Bain House
2026
Toronto, Canada
Residential
368 m2
In Progress
Talisman Mountain Resort & Spa
2025
Kimberley, Canada
Multi-Unit / Commercial
63,584 m2
Concept
250502_View 05 (Overview) Merged Extended_Brightened_resize
241025_View 02 (Spa)_resize
Forest House
2022
Oakville, Canada
Residential
1,313 m2
In Progress
SPN-001_Exterior Rear
SPN-001_Driveway
SPN-001_Four Seasons 1
SPN-001_Central Hall 1
SPN-001_Central Hall 2
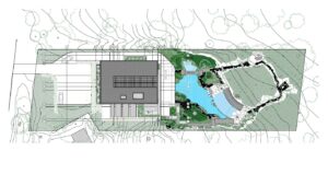
SPN-001_Site Plan
Portrait of Young Artists From Willowdale
2017
North York, Canada
Artwork
45 m2
Completed
RAFF.002 Lee Lifeson Art Park-2
RAFF.002 Lee Lifeson Art Park-1
The Universal Church
2020
Toronto, Canada
Cultural
15,265 m2
In Progress
Rapid Transit Stations
2010
Mississauga, Canada
Commercial
10,440 m2
Completed
SGA-001_Mississauga BRT
BRT-001_IMG_MississaugaMiWay_by Shai Gil
BRT-001_IMG_MississaugaStationSquare_by Shai Gil
BRT-001_IMG_MississaugaStationElevator_by Shai Gil
BRT-001_IMG_MississaugaMiWay_Dawn_by Shai Gil
Ricochet Stair
2021
Toronto, Canada
Residential
4 m2
Completed
WHT-001_Diffraction Stair [2]
WHT-001_IMG_L1_Staircase_03_by Steve Tsai
WHT-001_IMG_L1_Staircase_04_by Steve Tsai
WHT-001_IMG_L1_Staircase_02_by Steve Tsai
Villa Brisana
2025
San Juan, Puerto Rico
Residential
431 m2
Completed
YEP-001_Villa Brisana
YEP-001_IMG_L1_East Elevation_Detail_01_by Michael Stavaridis
YEP-001_IMG_L1_Garden_Inner_10_by Michael Stavaridis CROP
YEP-001_IMG_L1_Garden_Inner_06_by Michael Stavaridis
YEP-001_IMG_L1_Pool_01_by Michael Stavaridis
YEP-001_IMG_L1_Screen_01_by Michael Stavaridis
Echo House
2013
Toronto, Canada
Residential
1,538 m2
Completed
SNG-001_Echo House
Echo House
Echo House
Echo House
Echo House
SNG Bridle Path
Cascade House
2008
Toronto, Canada
Residential
481 m2
Completed
ALI-001_Cascade House [SKEW FIX]
media-container1111
media-container-2
media-container-3
Arc of Memory
2024
Ottawa, Canada
Artwork
1,200 m2
Completed
National Monument
VOC-003_Detail
03_Arc of Memory_Medium Res
09_Arc of Memory_Medium Res
04_Arc of Memory_Medium Res
05_Arc of Memory_Medium Res
01_Arc of Memory_Medium Res
Richmond Castle
2014
Toronto, Canada
Residential
1,064 m2
Designed
BJL-002_Richmond Castle
BJL-002_RND_S1_Corner Day_by Design Stor
BJL-002_RND_S1_Facade Dusk_by Design Stor
BJL-002_RND_S1_Facade Day_by Design Stor
BJL-002_RND_S1_Aerial Dusk_by Design Stor CROP
Madrigal House
2016
Toronto, Canada
Residential
776 m2
Completed
HRS-001_Madrigal House
Annex Residence
Annex Residence
Annex Residence
Annex Residence
Annex Residence
Atmospheric Lens
2017
Toronto, Canada
Artwork
1,500 m2
Completed
Vaughan Metropolitan Station
TTC-001_Exterior
TTC-001_IMG_S1_013_Shai Gil
TTC-001_IMG_S1_022_Shai Gil
TTC-001_IMG_S1_029_Shai Gil
TTC-001_IMG_S1_016_Shai Gil
402 Roncesvalles Avenue
2019
Toronto, Canada
Commercial
972 m2
Completed
Tiny Explorers Academy
TNY-001_Tiny Explorers Academy
TNY-001_IMG_S1_Interior view_02 copy
TNY-001_IMG_Aerial Roof View_Arnaud Marthouret_EDIT
TNY-001_IMG_Detail Roof with Landscaping_Arnaud Marthouret_RVLTR_recolour
TNY-001_IMG_Aerial Roof_Arnaud Marthouret_RVLTR_recolour
Leacroft House
2018
Toronto, Canada
Residential
590 m2
Completed
BNK-001_Leacroft House
Leacroft Residence
BNK-001_IMG_S1_Front Elevation 02 with Person_Ben Rahn_A-Frame
Leacroft Residence
Biosphere Sustainability Centre
2010
Gananoque, Canada
Cultural
11,508 m2
Designed
GAN-001_Biosphere Sustainability Centre [2]
Gananoque Biosphere Sustainability Centre
Gananoque Biosphere Sustainability Centre
Gananoque Biosphere Sustainability Centre
Gananoque Biosphere Sustainability Centre
Counterpoint House
2014
Toronto, Canada
Residential
356 m2
Completed
ALV-001 [NO CARPET]
Albertus Residence
Albertus Residence
Albertus Residence
Albertus Residence
Albertus Residence
Garden Pavilion
2003
Toronto, Canada
Cultural
12 m2
Completed
BRN-001
Garden Pavillion
Treetop Villas
2006
Phuket, Thailand
Multi-Unit
7,400 m2
Designed
Kamala Treettop Villas
ABO-003_RND_L1_transparent
ABO-003_RND_L1_Section
Kaleidoscope House
2015
Toronto, Canada
Residential
485 m2
Completed
SMP-001_Kaleidoscope House_OVERSIZE
SMP-001_IMG_L1_Front facade_Ben Rahn_A-Frame EDIT
SMP-001_IMG_L1_View from entry_Ben Rahn_A-Frame
SMP-001_IMG_L1_View of stair from entry_Scott Norsworthy
SMP-001_IMG_L1_Stair detail in portrait 07_Scott Norsworthy
SMP-001_IMG_L1_Stair detail in landscape 02_Scott Norsworthy
Shoreline Commemorative
2014
Toronto, Canada
Artwork
26 m2
Completed
CON-004_Shoreline Commemorative
CON-004_IMG_L1 Looking South02_Scott Norsworthy
CON-004_IMG_L1_Detail01_Scott Norsworthy
CON-004_IMG_L1_Detail02_Scott Norsworthy
CON-004_IMG_L1 Looking West_Scott Norsworthy CROP
Station C
2021
Toronto, Canada
Cultural
5,031 m2
Concept
Queen West Arts Centre
MAR-002
Bluepoint Residences
2008
Phuket, Thailand
Multi-Unit
3,500 m2
Completed
ABO-004_Bluepoint Residences
ABO-004_DWG_AXONOMETRY_01
Pages from ABO-004_PRESENTATION DRAWINGS
ABO-004_RND_L-BPRendInteriorView02
Glencairn House Addition
2015
Toronto, Canada
Residential
422 m2
Completed
GVR-004_Glencairn House Addition
Glencarin Residence
Glencarin Residence
Glencarin Residence
Glencarin Residence
Galleon House
2021
Toronto, Canada
Residential
452 m2
Completed
APO-001_Galleon House
media-container
media-container-2
media-container-1
media-container-4
APO-001_IMG_L1_Stair_Detail_03_with Person_by Ben Rahn_edit
Mirage
2012
Toronto, Canada
Artwork
270 m2
Completed
WTO-001_Mirage
WTO-001_IMG_L1-Panel Close Up Diagonial-by_Steven_Evans
WTO-001_IMG_L1-Passerby Reflections04_Cassandra Hryniw
WTO-001_IMG_L1-Evening View with Bench-by_Steven_Evans
Natai Beach Villas
2010
Phang Nga, Thailand
Multi-Unit
861 m2
Completed
RAP-001_Natai Beach Villas
SUR 1
The_Natai_Horizon
The_Natai_Beach
The_Natai_Exterior_Day
Loja Hillside Masterplan
2016
Loja, Ecuador
Multi-Unit
1,150,000 m2
Concept
ECD-001_RND_S1_Loja courtyard
ECD-001_RND_S1_Mountain vista
ECD-001_RND_S1_Interior
Summer Music Amphitheatre
2010
Perth County, Canada
Cultural
7,187 m2
Concept
RVT-004_Summer Music Ampitheatre
Summer_Music_Ampitheatre4
Summer_Music_Ampitheatre3
Summer_Music_Ampitheatre2
Latitude
2008
Toronto, Canada
Multi-Unit
150 m2
Concept
RVT-003_Latitude
Rosedale Apartment
2018
Toronto, Canada
Residential
185 m2
Completed
MJH-008_Rosedale Apartment
MJH-008_IMG_L1_LivingRoomWithPeople01_by Steve Tsai
MJH-008_IMG_L1_LivingRoomWithPeople02_by Steve Tsai
MJH-008_IMG_L1_LivingRoom04_by Steve Tsai
MJH-008_IMG_L1_LivingRoom03_by Steve Tsai
Limelight Bandshell
2017
Toronto, Canada
Artwork
7 m2
Completed
Lee Lifeson Art Park
TOR-014_Limelight Bandshell
TOR-014_IMG_L1_Evening Ampitheatre Buildings and People Close_Jack Landau
TOR-014_IMG_L1_Profile With People_Jack Landau CROP
TOR-014_IMG_L1_Angle Right With People 2_Jack Landau
TOR-014_IMG_L1_Cellist 1_Jack Landau
TOR-014_IMG_L1_Detail Angle Top Portion 5A_Jack Landau
Transit Exit Pavilions
2017
Greater Toronto Area, Canada
Cultural
157 m2
Completed
SGA-002_TTC – Transit Exit Pavilions [2]
SGA-002_IMG_L1_Marble EEB Tail 4_Scott Norsworthy EDIT
SGA-002
SGA-002_IMG_L1_Brick EEB Detail 4_Scott Norsworthy
Baby Point Renovation
2011
Toronto, Canada
Residential
412 m2
Completed
KAP-002_Baby Point Renovation
KAP-002_IMG_L1_DiningArea_by-Steve Tsai
KAP-002_IMG_L1_KitchenwithBackyardView_by-Steve Tsai CROP
KAP-002_IMG_L2_LivingRoomDetail_by-Steve Tsai EDIT
Culu Culu Resort & Villas
2010
Lobos, Argentina
Multi-Unit / Commercial
808 m2
Concept
Culu_Culu_Polo_Villas_Dining3
Culu_Culu_Polo_Villas_Dining4
Regina Gateway
2011
Regina, Canada
Artwork
1,010 m2
Completed
REG-001_Regina Gateway
REG-001_RND_L1_Fan_Diagram-02
REG-001_IMG_S1_Installation_AI upscale
Bluepoint Pavilion
2008
Phuket, Thailand
Commercial
63 m2
Completed
Bluepoint Pavillion
ABO-005_IMG_S1_03A
ABO-005_IMG_S1_03B
Hours of the Day
2018
Toronto, Canada
Artwork
10 m2
Completed
Correctional Workers Monument
QPM-001_Hours of the Day
Le Jeune Studio Work/Live
2011
Montreal, Canada
Commercial
480 m2
In Progress
DOR-003
DOR-003_IMG_S1_Stair looking up
Nexus Park City
2008
Changchun, China
Multi-Unit
230,000 m2
Concept
Nexus_Park_City_Plan_1
Nexus Park City
Nexus_Park_City_Plan_2
Coffee Town Masterplan
2007
Changchun, China
Cultural
21,900 m2
Concept
Coffee Town Masterplan
Coffee_Town_Masterplan_Banded_Landscape
Coffee_Town_Masterplan_Bridge
Wavelengths
2014
Toronto, Canada
Artwork
497 m2
Completed
CXT-001_Wavelengths [EDIT]
Wavelengths
Wavelengths
Wavelengths
Wavelengths
Nanjing Waterfront Masterplan
2002
Nanjing, China
Landscape
289,000,000 m2
Concept
imgi_2_Nanjing_Waterfront-1500×809
imgi_3_Nanjing_Waterfront_2-1500×809
Canadian Music Centre
2004
Toronto, Canada
Cultural
1,330 m2
Concept
Canadian Music Centre
Canadian Music Centre
2dDRAWINGS plans -1 +1 +4 (1)
Shutter Speed
2019
Toronto, Canada
Artwork
6 m2
Concept
01_Perspective_crop
imgi_3_190426_Orthographics_right
Brampton Firefighters Memorial
2022
Brampton, Canada
Artwork
2 m2
Concept
Scene_4 copy
Scene_2.0 copy
Scene_1.0 copy
Chromospheres
2019
Ottawa, Canada
Artwork
25 m2
Concept
AAA-004_Chromospheres
AAA-004_RND_S1_Exterior shot approach
Glass Pavilions
2017
Greater Toronto Area, Canada
Commercial
157 m2
Concept
Emergency Exit Buildings
EEBs_Construction03_3000x1618
EEBs_Construction02_3000x1618
EEBs_Construction01_3000x1618
Emergency-Exit-Building3
Emergency-Exit-Building2
Horizon Light Wall
2007
Toronto, Canada
Artwork
162 m2
Concept
Horizon Light Wall Project
Silo Sundial
1992
Toronto, Canada
Artwork
402 m2
Concept
Silo Sundial Art
Unbuilding Ways
1995
Toronto, Canada
Artwork
200 m2
Completed
Unbuilding Ways Art Toronto
Unbuilding_ways_Art_1
Unbuilding_ways_Art_2
Fall
1998
Toronto, Canada
Artwork
3 m2
Completed
Fall Art Project Paul Raff
Common Ground
2000
Toronto, Canada
Artwork
300 m2
Completed
Strachan House
Common_Ground_Art_5
Common_Ground_Art_1
Common_Ground_Art_2
Common Ground Art Project
Common_Ground_Art_4